北京地铁8号线新增出入口基坑稳定性验算与建议,北京地铁8号线有哪些车站?
北京地铁8号线新增出入口基坑稳定性验算与建议
北京地铁8号线有哪些车站?1.八号线一期:北土城站、奥林匹克体育中心站、奥林匹克公园站和森林公园南门站。2.八号线二期:(南段)北土城、安化桥、黄寺、鼓楼街、后海、南锣鼓巷、美术馆东街。3.八号线二期:(北段)霍颖西三旗南永泰崔林路森林公园南门

北京地铁8号线什么时候南北贯通?
官员们预计2020年底 通常晚于官方,剩下的王府井8号线车站很难建设。 1.八号线一期:北土城站、奥林匹克体育中心站、奥林匹克公园站和森林公园南门站 2.八号线二期:(南段)北土城、安化桥、黄寺、鼓楼街、后海、南锣鼓巷、美术馆东街 3.八号线二期:(北段)永泰崔林路森林公园南门,西三旗以南,西三旗和霍颖。这两条线不相交。你必须再次改变它们。 8号线去北土城,换乘10号线,在双井换乘7号线。 八号线三期工程将分南北两部分开放,竹石口站以南部分将于2018年底开放。 但是,由于王府井、前门等北线地区的通行,沿线有大量文物和其他建筑,以及现有管线、地铁1号线和2号线以及北京地铁直径线隧道,2018年将不会通车,届时8号线将在南北段运营。 20.目前,北京地铁8号线计划延伸至瀛海地区。
北京地铁8号线有哪些车站?
北京地铁8号线有哪些车站?1.八号线一期:北土城站、奥林匹克体育中心站、奥林匹克公园站和森林公园南门站。2.八号线二期:(南段)北土城、安化桥、黄寺、鼓楼街、后海、南锣鼓巷、美术馆东街。3.八号线二期:(北段)霍颖西三旗南永泰崔林路森林公园南门

北京地铁8号线什么时候南北贯通?
北京地铁8号线新增出入口基坑稳定性验算与建议范文

随着城市地铁轨道交通的快速发展和地面空日益稀缺,地铁出入口的施工环境将变得越来越复杂。
在出入口施工的早期,基坑开挖在工程建设中起着重要的作用。只有有了稳定安全的基础,建设项目才能有序完成。因此,在保证工期和环境的情况下,如何保证基坑的安全是设计和施工中首先要考虑的问题。影响基坑安全的主要因素是基坑的稳定性,[1】。基坑稳定性的主要内容包括:基坑边坡整体稳定性、支护结构抗滑稳定性、支护结构抗倾覆稳定性、基坑底土抗隆起稳定性、基坑底土抗渗稳定性和基坑底土抗浪涌稳定性等。其他要求的稳定性项目应根据具体项目的具体情况确定。基坑的稳定性主要取决于支护结构和支护体系的合理性。针对北京地铁8号线鼓楼街站改造过程中已完成围护结构埋深不够的问题,对加固前后的基坑进行稳定性计算,并对稳定性计算结果进行分析,得出最终结论。
1,项目概述
北京地铁8号线鼓楼街站西北入口施工期间,原有2号线鼓楼街站西南入口需进行改造。为了满足2号线鼓楼街站的正常运行要求,2号线鼓楼街站需要一个新的西北入口。
鼓楼街站新增西北出入口呈“丁字”状分布,东西出入口通道和车站广场长85.5米,宽5.4米。施工是在挖方和盖方进行的。基坑开挖深度约为13米,基坑采用钻孔灌注桩+600毫米钢支撑。南北通道为人民防空段,长约19.5米,深约5.3米
出入口明挖段北侧紧邻北二环路护城河,南侧为德胜门东街(北二环路城市辅路),东侧距旧鼓楼大桥桥基约15 m。西北出入口周围环境见图1。

图1西北入口周围环境(m)
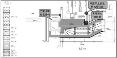
出入口东侧倾斜通道结构施工完成后,暗挖段施工开始。由于原污水管道的实际标高与测量数据不符,导致管道与暗挖段的标高冲突,需要切断已完成暗挖段的楼板和侧壁,新的楼板和侧壁需要下沉。进出口暗挖段与管道标高冲突示意图见图2,西北进出口明挖段改造范围见图3。

图2进出口暗挖段与管道高程冲突示意图

图3西北出入口明挖段改造范围示意图
2。地质和水文条件
2.1、工程地质特征
项目场地表层主要为人工堆积层,人工堆积层下方为第四系沉积粘质土、淤泥、砂土、砂卵石相互作用沉积。考虑地下水渗流的围岩分类修订为六级。
2.2.水文条件
项目场地以北3.3 m为护城河,宽约25 m,深约3 m,目前水位标高约为42.50m。2)2010年10月初,地下水项目主要揭露勘探深度范围内的两层地下水,即第一层为上层滞水;二楼是潜水。总水位埋得很深。
3。
原基坑采用挖盖施工,钻孔灌注桩为围护结构,600 mm高压旋喷桩为防水帷幕,200 mm咬合。结构最深下沉约2.7米,导致原设计挡土桩和[2号旋喷桩深度不足。在原明挖基坑积水坑的开挖过程中,发现结构沉降最深2.7 m处的地层为细砂土层,富含地下水,容易出现流砂等现象。此外,由于基坑北侧紧邻北二环护城河,其水面标高比基坑高出9米,如果在结构沉降和改造过程中不采取相应的加固措施,很容易造成基坑侧壁渗漏、围护结构失稳、基坑坍塌等。,甚至可能造成护城河水流入基坑等重大事故。
基坑自上而下穿过的土层为杂填土(5.39米)、杂填土(1.7米)、淤泥(2.0米)、粘性土(0.7米)、粘性土(2米)和粘性土(1.5米)。因此,“李政基坑稳定性分析验算”软件有助于基坑的整体稳定性。基坑整体稳定性验算选用瑞典条分法,土条宽度为1.0 m,加固前基坑整体稳定性验算图见图4。从计算结果可以看出,滑动裂纹面的圆弧半径R=10.826 m,中心坐标X=-2.719 m,Y=8.098 m,整体稳定安全系数Ks= 1.165≤1.35,不符合规范要求。
4,治疗计划和治疗后包膜稳定性分析
4.1.治疗计划
鉴于上述计算过程中基坑整体稳定性不符合规范要求,埋深不够,结合[5号现场实际情况,进行如下处理:基坑开挖前,对改造后基坑底板以下4 m范围内的土进行旋喷桩加固,并将基坑底部旋喷桩止水帷幕加深至2 m。加筋土的渗透系数≤1×10-6cm/s,28 d无侧限抗压强度不小于1.2 MPa,满足要求。
4.2.基坑处理后的稳定性分析
根据加固后的实际情况,对加固前不符合规范要求的基坑整体稳定性和埋深进行了再次分析。
5。结论和建议
施工过程中,混凝土拆除和基坑开挖应分段进行,每段长度不得大于8 m[6】。同时,土方开挖也应分层进行。对于待凿断面与已凿断面接触面处的土,应根据开挖高度分层喷浆拌制护墙,防止土体坍塌。施工中应密切关注基坑围护结构的变化,加强测量,及时反馈测量信息。
工程最终成功完成,表明加固处理方案合理,经过总结分析得出以下结论:
1)西北出入口围护桩锚固深度不够后,基坑开挖过程中未出现基底隆起、涌水等现象。结构和围护桩的监测数据在规范允许范围内,取得了良好的效果。
2)基坑的稳定性与土层和桩基的埋深密切相关,地层基础的加固在一定程度上弥补了围护桩埋深不足的缺陷。
3)根据时间空效应,采用分段施工对基坑开挖的安全性非常重要。同时,可增加临时支撑系统或锚索,以提高基坑的整体稳定性。具体方法可根据实际施工现场情况确定。
参考:
黄平生。[,地铁车站围护结构设计中的几个主要因素。甘肃科技,2005 (2): 108。
傅志峰、吴小芸、刘芳。支撑结构埋深的计算与分析[[J]。岩土基础,2011 (2): 72-75。
[3]寒若珉。[地铁回龙观东街站深基坑支护结构优化设计研究。长春:吉林大学,2009。
[4]中国建筑科学院。《基坑支护技术规范:JGJ 120-2012[标准》。北京:中国建筑工业出版社,2012。
周传波、江楠、刘金文。武汉地铁[站深基坑支护结构参数优化系统研究。地下空与工程杂志,2012 (6): 1267-1275。
王睿农钟惺。软土地区围护结构埋置深度的研究[[]。城市快速轨道交通,2011 (3): 74-76。



